Carrer d'Aiora, 35, bajo - Patraix, 46018 Valencia
C/ Dolores Marqués, 11 - 46020 València, Valencia




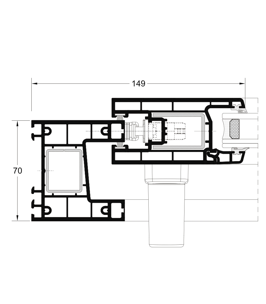
Sistema de ventana y balconera correderas de 70 mm de profundidad de marco con un óptimo rendimiento térmico y acústico. Posibilidad de nudo central minimalista de 30 mm.
Posibilidades:
Herraje de seguridad
Accesibilidad
» Acristalamiento
Máx. 28 mm
Mín. 4 mm
» Posibilidades de apertura
Corredera
» Secciones
Marco 70 mm
Hoja 46 mm
» Dimensiones máx. hoja
Ventana
Ancho (L) 1400 mm
Alto (H) 1800 mm
Balconera
Ancho (L) 1800 mm
Alto (H) 2600 mm
» Peso máx. hoja
Ventana
70 Kg
Balconera
200 Kg
Consultar peso y dimensiones máximas según tipología
» Acabados
Blanco
Color
Bicolor
Imitación madera
Metalizado
» Transmitancia
Uf ≥ 1,8 (W/m²K)
» Aislamiento acústico
Rw hasta 38 dB
» Permeabilidad al aire
(UNE-EN 12207) Clase 4
» Estanqueidad al agua
(UNE-EN 12208) Clase 7A
» Resistencia al viento
(UNE-EN 12210) Clase C5
» Ensayo de referencia
Ensayo AEV 1,23 x 1,48 m / 2 hojas