Carrer d'Aiora, 35, bajo - Patraix, 46018 Valencia
C/ Dolores Marqués, 11 - 46020 València, Valencia




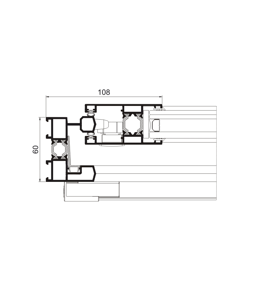
Sistema de corredera en línea de gran versatilidad con estética recta o curva, hojas a testa o perimetrales y diversos marcos adecuados a las diferentes configuraciones.
En su versión de hojas rectas y a testa permite una apertura integral del hueco con la solución GALANDAGE, ocultando totalmente las hojas en la cámara del muro de obra.
Además, esta versión permite integrar sobre el mismo marco el sistema Tamiz de protección solar.
» Acristalamiento
Máx. 26 mm
Mín. 9 mm
» Posibilidades de apertura
Corredera
Monocarril, Bicarril y tricarril
Galandage monocarril y bicarril
» Secciones
Marco 60 / 65 / 77 / 80 mm
106 / 126 mm tricarril
Hoja 33 / 37 mm
» Espesor de perfilería
Ventana 1,5 mm
» Longitud varilla de poliamida
14,6 a 20 mm
» Dimensiones máx. hoja
Ancho (L) 2200 mm
Alto (H) 2600 mm
» Peso máx. hoja
100 Kg hoja perimetral
200 Kg hoja a testa
Consultar peso y dimensiones máximas según tipología
» Posibilidades estéticas
Hoja: recta o curva
Junquillo: recto o curvo
» Acabados
Posibilidad bicolor
Lacado colores (RAL, moteados y rugosos)
Lacado imitación madera
Lacado antibacteriano
Anodizado
» Transmitancia
Uw ≥ 1,5 (W/m²K)
Consultar tipología, dimensión y vidrio
» Aislamiento acústico
Rw hasta 39 dB
» Permeabilidad al aire
(UNE-EN 12207) Clase 3
» Estanqueidad al agua
(UNE-EN 12208) Clase 7A
» Resistencia al viento
(UNE-EN 12210) Clase C5
» Ensayo de referencia
AEV 1,20 x 1,20 m / 2 hojas